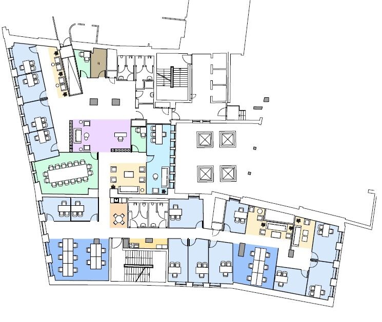
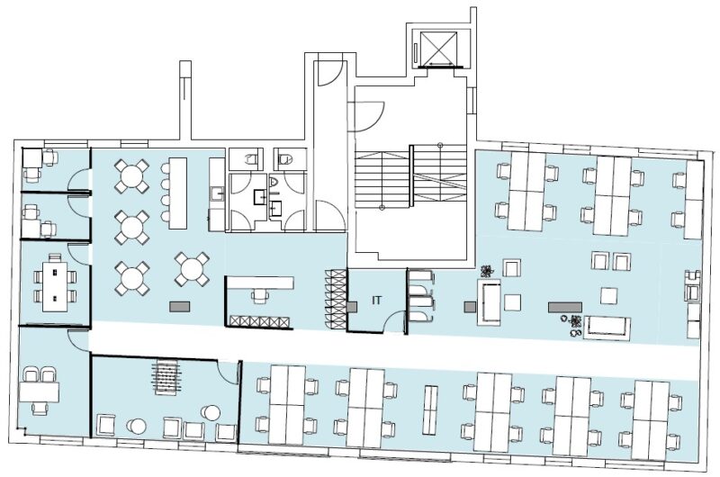
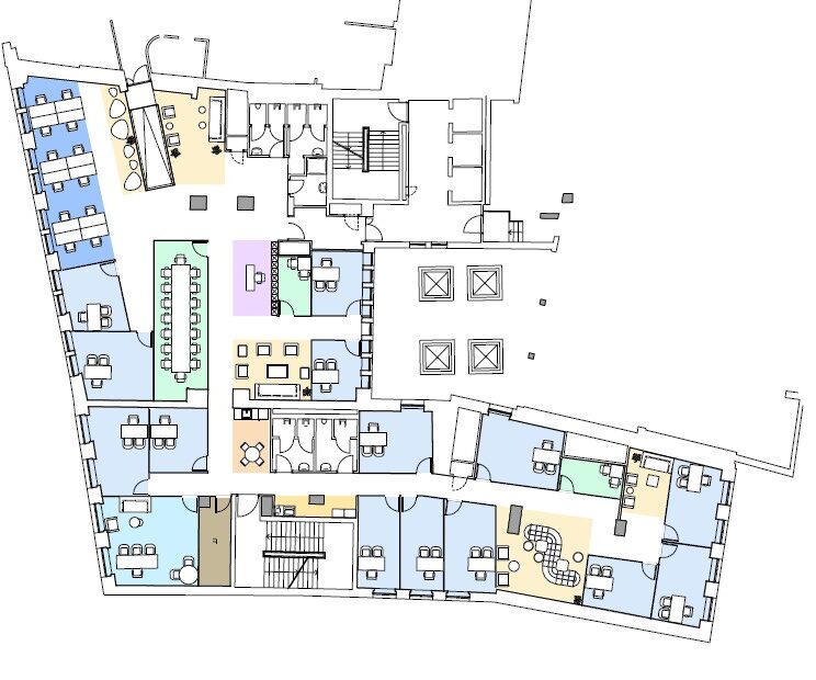
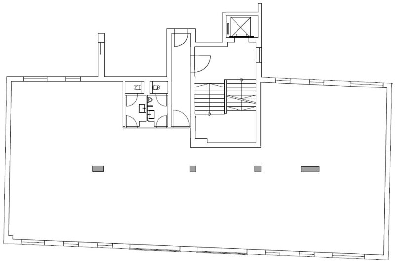
Belegungspläne

Unsere Belegungspläne zeigen auf einen Blick, welches Potenzial in einer Immobilie steckt.
Arbeitsplätze, Besprechungsräume und Funktionsflächen werden effizient angeordnet und exakt auf die Anforderungen der Zielnutzer abgestimmt.

Jede Darstellung wird individuell auf die Bedürfnisse des Kunden angepasst – von klassischen Bürokonzepten bis hin zu flexiblen Arbeitswelten.

Kleinere Anpassungen im fertigen Belegungsplan sind dabei kostenfrei möglich, um Feinabstimmungen unkompliziert umzusetzen. Die Preisgestaltung richtet sich nach der Größe der Fläche sowie nach den vorhandenen Planungsunterlagen und bildet so eine faire, transparente Grundlage.

Gemeinsam planen wir Ihre perfekte Fläche –
wir freuen uns auf Ihre Kontaktaufnahme

Ihre Räume.
Unser digitales Know-how.

Kontaktieren Sie uns für maßgeschneiderte Lösungen zur effektiven Vermarktung Ihrer Immobilien.

Scroll to Top